Щит учетно-распределительный навесной ЩУРн-П 3/11 IP55 EKF PROxima (пластик), серый
Щиты учетные пластиковые EKF серии ЩУРн-П предназначены для установки однофазных и трехфазных счетчиков, а также модульных аппаратов защиты.
![]() |
![]() |
Преимущества
- Штатные крепления облегчают задачу по установке щитов на столб (монтажный комплект для крепления на столб приобретается отдельно).
- Благодаря высокой степени защиты щиты можно устанавливать в помещениях с повышенным содержанием пыли и влаги, а также на улице.
- Возможность опломбировки счетчика позволяет использовать щит в частном секторе и дачном строительстве.
- Окошки из прозрачного пластика обеспечивают легкое и удобное считывание показателей электросчетчика, а также дают возможность контролировать текущее состояние аппарата защиты.
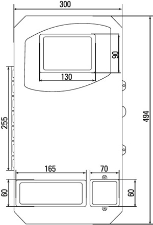
Размеры

Материалы и цвета
| Цвет корпуса и дверцы | Серый |
| Материал корпуса и дверцы | полистирол |
Особенности конструкции
Корпус не выгорает |
Корпус не требует |
Окно для вводного |
Опломбировка корпуса. |
Штатные пазы для |
Проушины на корпусе для |
Технические характеристики
| Артикул | pb-3/11-55 |
| Тип изделия | щит учетно-распределительный |
| Исполнение | навесной |
| Номинальное напряжение, В | 230 / 400 |
| Номинальный ток, А | 125 |
| Количество DIN реек | 1 |
| Модульная ширина общая (шаг 18 мм) | 11 |
| Количество модулей под опломбировку | 3 |
| Тип устанавливаемого счетчика | 1-фазный / 3-фазный |
| Тип дверцы | несъемная |
| Угол раскрытия дверцы, градусов | 180 |
| Наличие окон в дверце | 3 |
| Возможность опломбировки корпуса | есть |
| Подвод кабеля | снизу, сзади |
| Диаметр кабельного ввода, мм | 28 |
| Способ монтажа | на стену / на столб |
| Диапазон рабочих температур, °C | -45... +40 |
| Степень защиты от пыли и влаги | IP55 |
| Климатическое исполнение и категория размещения | У1 |
| Вес изделия нетто, кг | 1,6 |
| Срок службы, лет | 10 |
Комплектация
- Щит учетно-распределительный пластиковый.
- Сальники типа "пирамидка".
- DIN рейка для модульной автоматики.
- Монтажный комплект (дюбели + саморезы).
Преимущества
- Доставка по всей России
- Более 200 000 товаров в ассортименте
- Профессиональная консультация
- Кабель БЕЗ опасности
- Качество по ГОСТу
|
Бренд
|
EKF |
|
Высота, мм
|
300 |
|
Глубина, мм
|
136 |
|
СрокГарантии, мес
|
60 |
|
Общее количество модулей
|
11 |
|
Серия
|
5a4cecab-21d0-11ec-90b8-00155d166b05 |
|
Тип монтажа
|
навесной |
|
Тип счетчика
|
3ф |
|
Ширина, мм
|
494 |
-
Зайдите на страницу товара и нажмите на кнопку «В корзину».
Далее можно продолжить покупки или перейти к оформлению заказа.
-
Перейдите в Корзину и нажмите «Перейти к оформлению».
Можно авторизоваться или оформить заказ без регистрации. Зарегистрированные пользователи могут:
- Отслеживать статус заказа
- Получать спецпредложения и промокоды на дополнительные скидки
- Укажите Ваши контакты: ФИО, телефон и e-mail.
- Выберите способ получения заказа (доставка или пункт самовывоза) и способ оплаты.
- Далее «Оформить заказ».
Готово: ваш заказ создан! По электронной почте или в личном кабинете Вы можете отслеживать статус заказа.
Теперь останется только ждать доставки и радоваться новой покупке!
Оплачивайте покупки удобным способом.
В нашем интернет-магазине доступно 3 варианта оплаты:
- Оплата наличными или картой при самовывозе в пункте выдачи заказов/магазине.
- Онлайн-оплата на сайте при оформлении заказа. Для совершения покупки система перенаправит вас на страницу платежного сервиса. Здесь необходимо заполнить форму по инструкции.
- Оплата по счету для юридических лиц. Оплата происходит после предоставления реквизитов для выставления счета. Покупатель получает счет на указанный e-mail.
Доступно 3 варианта доставки:
- Самовывоз из магазина. Список торговых точек для выбора появится в корзине. Для получения заказа обратитесь к сотруднику в кассовой зоне и назовите номер заказа.
- Доставка транспортной компанией СДЭК или Почтой РФ в отделение или постамат.
По всем возникающим вопросам можете позвонить нам на горячую линию:
Ежедневно с 8:00 до 20:00 по МСК
E-mail: help@kristall43.ru
Адрес: 610000, г. Киров, ул. Щорса, 68г, кабинет 3







