Шина на DIN-рейку в корпусе (кросс-модуль) ШН103-4-07-100 DEKraft
Шины на DIN-рейку в корпусе (кросс-модули) DEKraft предназначены для электрического и механического соединения проводников в цепях переменного и постоянного тока с номинальным напряжением до 400 В.
Применяются при комплектации щитового оборудования для подсоединения нулевых рабочих и защитных проводников.
Каждая шина отдельно изолирована.
Съемная крышка защищает пользователя от случайного прикосновения к проводникам.
Винты нулевых шин имеют универсальный шлиц.
Преимущества
- Компактная разводка кабеля и сборка в щите.
- Защита от прикосновения к токоведущим частям.
- Удобство обслуживания щита.
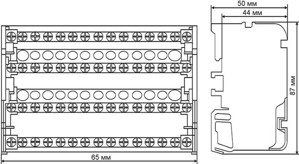
Размеры

Установочные размеры:

Материалы и цвета
| Тип поверхности крышки | прозрачный тонированный |
| Материал изолирующей задней панели и крышки | огнестойкий пластик |
| Материал шины | электротехническая бронза |
Технические характеристики
| Артикул | 32017DEK |
| Тип изделия | шина нулевая в корпусе (кросс-модуль) |
| Количество шин в корпусе | 4 |
| Количество отверстий в шине | 7 |
| Номинальный ток Iном, А | 100 |
| Напряжение изоляции Ui, В | 500 |
| Максимальный кратковременный выдерживаемый ток Ipk, кА | 20 |
| Температура окружающей среды, °C | -25... +40 |
| Среднее значение относительной влажности воздуха, не более, % | 90 при +25 °C |
| Степень защиты от пыли и влаги | IP20 |
| Способ крепления | на рейку ТН35-7,5 / на монтажную панель щита 2 винтами |
| Количество и диаметр отверстий в одной шине | 5 х 5,3 мм; 2 х 7,5 мм |
| Метрическая резьба винтов крепления | М4 |
| Сечение подключаемого проводника с наконечником-гильзой, кв.мм | 1,5 - 6; 6 - 16 |
| Сечение подключаемого проводника без наконечника, кв.мм | 2,5 - 6; 6 - 25 |
| Усилие затяжки винтов, Н*м | 3 |
Примечание
В случае применения проводников с классом жилы больше 1 (многопроволочные) на конец жилы необходимо установить и закрепить наконечник-гильзу.
Преимущества
- Доставка по всей России
- Более 200 000 товаров в ассортименте
- Профессиональная консультация
- Кабель БЕЗ опасности
- Качество по ГОСТу
|
Бренд
|
DEKraft |
|
Количество соединений
|
7 |
|
СрокГарантии, мес
|
18 |
|
Размер шины
|
4*7 |
|
Тип исполнения
|
в корпусе (кросс-модуль) |
|
Тип монтажа
|
на DIN-рейку |
|
Цвет изолятора
|
нет |
-
Зайдите на страницу товара и нажмите на кнопку «В корзину».
Далее можно продолжить покупки или перейти к оформлению заказа.
-
Перейдите в Корзину и нажмите «Перейти к оформлению».
Можно авторизоваться или оформить заказ без регистрации. Зарегистрированные пользователи могут:
- Отслеживать статус заказа
- Получать спецпредложения и промокоды на дополнительные скидки
- Укажите Ваши контакты: ФИО, телефон и e-mail.
- Выберите способ получения заказа (доставка или пункт самовывоза) и способ оплаты.
- Далее «Оформить заказ».
Готово: ваш заказ создан! По электронной почте или в личном кабинете Вы можете отслеживать статус заказа.
Теперь останется только ждать доставки и радоваться новой покупке!
Оплачивайте покупки удобным способом.
В нашем интернет-магазине доступно 3 варианта оплаты:
- Оплата наличными или картой при самовывозе в пункте выдачи заказов/магазине.
- Онлайн-оплата на сайте при оформлении заказа. Для совершения покупки система перенаправит вас на страницу платежного сервиса. Здесь необходимо заполнить форму по инструкции.
- Оплата по счету для юридических лиц. Оплата происходит после предоставления реквизитов для выставления счета. Покупатель получает счет на указанный e-mail.
Доступно 3 варианта доставки:
- Самовывоз из магазина. Список торговых точек для выбора появится в корзине. Для получения заказа обратитесь к сотруднику в кассовой зоне и назовите номер заказа.
- Доставка транспортной компанией СДЭК или Почтой РФ в отделение или постамат.
По всем возникающим вопросам можете позвонить нам на горячую линию:
Ежедневно с 8:00 до 20:00 по МСК
E-mail: help@kristall43.ru
Адрес: 610000, г. Киров, ул. Щорса, 68г, кабинет 3