Корпус пластиковый навесной ЩУРн-П 3/12 IP66 PC IEK Krepta 5 (12 модулей) для трехфазного счетчика
Пластиковые корпуса для установки счетчика ЩУРн-П IP66 IEK серии Krepta 5 предназначены для установки в нем счетчиков электроэнергии и модульной аппаратуры распределения электроэнергии переменного тока напряжением до 400 В и частотой 50 Гц.
Благодаря высокой степени защиты от пыли и влаги IP66 корпуса могут быть установлены в помещениях с высоким уровнем влажности и содержанием пыли, а также на открытом воздухе без использования козырька.
Устойчивы к УФ-лучам благодаря свойствам материала корпуса.
Преимущества
- Визуальный доступ к показаниям счетчика.
- Удобные съемные крышки для оперативного доступа к автоматическим выключателям.
- Наличие выламываемых отверстий для ввода кабеля.

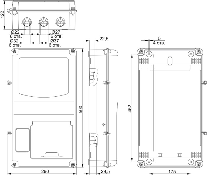
Размеры

Материалы и цвета
| Тип поверхности крышки | прозрачный тонированный |
| Материал крышки | поликарбонат |
| Цвет корпуса | Белый |
| Материал корпуса | ABS пластик |
Особенности конструкции
- Высокая степень защиты от пыли и влаги IP66 благодаря наличию уплотнителя.
- Специальные петли для быстрого снятия дверцы.

- Возможность опломбировки корпуса и дверцы.
- Отверстия для крепления на монтажную ленту (кроме ЩУРн-П 1/3 IP66 PC).

- Удобный доступ к автоматическим выключателям.
- Установка счетчика на монтажную панель и на DIN-рейку.

Технические характеристики
| Артикул | MSP3-N-12-55 |
| Тип изделия | корпус пластиковый ЩУРн-П |
| Исполнение | навесной |
| Номинальное напряжение, В | АС 230 / 400 |
| Частота тока, Гц | 50 |
| Количество устанавливаемых счетчиков | 1 |
| Тип устанавливаемого счетчика | трехфазный |
| Модульная ширина (шаг 18 мм) для модульных аппаратов, устанавливаемых в корпус | 12 |
| Номинальный ток устанавливаемых аппаратов, А | 100 |
| Номинальное напряжение изоляции, В | 660 |
| Статическая нагрузка, Н | 32 |
| Рассеиваемая мощность при номинальной нагрузке, Вт | 137 |
| Температура окружающей среды, °С | -45... +80 |
| Относительная влажность воздуха, не более, % | 50* при +40 °С |
| Степень защиты от пыли и влаги | IP66 |
| Климатическое исполнение и категория размещения | У1 |
| Степень защиты от внешних механических воздействий | IK08 |
| Класс защиты от поражения электрическим током | II |
| Наличие откидной крышки | нет |
| Количество установленных DIN-реек | 2 (для счетчика и для модульной аппаратуры) |
| Наличие замка | нет |
| Ввод кабеля | снизу |
| Количество вводов | 3 |
| Возможность пломбировки | есть |
| Вес изделия, кг | 1,65 |
* Допускается относительная влажность до 90% при температуре +20 °С.
Комплектация
- Корпус пластиковый.
- DIN-рейки для счетчика и модульного оборудования.
- Заглушки резиновые.
- Винты и пластиковые дюбели.
- Знак "Опасность поражения электрическим током".
- Шины N/PE на угловом изоляторе.
- Сальники ступенчатые.
Преимущества
- Доставка по всей России
- Более 200 000 товаров в ассортименте
- Профессиональная консультация
- Кабель БЕЗ опасности
- Качество по ГОСТу
|
Бренд
|
IEK |
|
Материал корпуса
|
пластик |
|
СрокГарантии, мес
|
60 |
|
Общее количество модулей
|
12 |
|
Серия
|
60a8885e-cfda-11e9-a3aa-00155d166b05 |
|
Тип монтажа
|
навесной |
|
Тип счетчика
|
3ф |
-
Зайдите на страницу товара и нажмите на кнопку «В корзину».
Далее можно продолжить покупки или перейти к оформлению заказа.
-
Перейдите в Корзину и нажмите «Перейти к оформлению».
Можно авторизоваться или оформить заказ без регистрации. Зарегистрированные пользователи могут:
- Отслеживать статус заказа
- Получать спецпредложения и промокоды на дополнительные скидки
- Укажите Ваши контакты: ФИО, телефон и e-mail.
- Выберите способ получения заказа (доставка или пункт самовывоза) и способ оплаты.
- Далее «Оформить заказ».
Готово: ваш заказ создан! По электронной почте или в личном кабинете Вы можете отслеживать статус заказа.
Теперь останется только ждать доставки и радоваться новой покупке!
Оплачивайте покупки удобным способом.
В нашем интернет-магазине доступно 3 варианта оплаты:
- Оплата наличными или картой при самовывозе в пункте выдачи заказов/магазине.
- Онлайн-оплата на сайте при оформлении заказа. Для совершения покупки система перенаправит вас на страницу платежного сервиса. Здесь необходимо заполнить форму по инструкции.
- Оплата по счету для юридических лиц. Оплата происходит после предоставления реквизитов для выставления счета. Покупатель получает счет на указанный e-mail.
Доступно 3 варианта доставки:
- Самовывоз из магазина. Список торговых точек для выбора появится в корзине. Для получения заказа обратитесь к сотруднику в кассовой зоне и назовите номер заказа.
- Доставка транспортной компанией СДЭК или Почтой РФ в отделение или постамат.
По всем возникающим вопросам можете позвонить нам на горячую линию:
Ежедневно с 8:00 до 20:00 по МСК
E-mail: help@kristall43.ru
Адрес: 610000, г. Киров, ул. Щорса, 68г, кабинет 3